Appartement
€ 215.000

Weeldestraat 109 B01 2, 2381 Weelde
    • delen

Omschrijving Ref.: 7298998

2-slaapkamerappartement te koop in het centrum van Weelde


Ontdek dit leuke appartement gelegen op de eerste verdieping, perfect voor wie op zoek is naar een gezellige plek in het centrum van Weelde.

Dit appartement biedt comfortabele woonruimtes, een zeer ruim terras om te genieten van het buitenleven en een handige garage. Bovendien biedt het appartement mogelijkheden voor vernieuwing, zodat u het helemaal naar uw eigen smaak kunt maken.

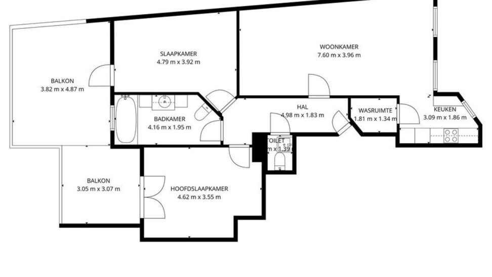
Indeling:

Woonkamer: Ruime woonkamer van ca. 28 m². Dankzij de prettige indeling is er voldoende ruimte voor zowel een zithoek als eethoek.

Keuken: De keuken is voorzien van moderne apparatuur, waaronder een AEG-vaatwasser, een koelkast en een kleine vriezer. Vanuit de keuken heeft u directe toegang tot de praktische berging/wasplaats, waar aansluitingen voor een was- en droogmachine aanwezig zijn.

Slaapkamers: Twee comfortabele slaapkamers met laminaatvloeren die bijdragen aan een warme en huiselijke sfeer:
Slaapkamer 1: met een oppervlakte van ca. 17 m² biedt deze kamer voldoende ruimte voor een groot bed en extra meubel.
Slaapkamer 2: deze slaapkamer van circa. 14 m² is ideaal voor gasten, een kinderkamer of een thuiskantoor.

Badkamer: De praktische badkamer van ca. 7,5 m² is uitgerust met een ligbad dat ook een douchefunctie heeft, een wastafel en een toilet.

Extra toilet: Een apart toilet met wastafel en afzuiging.

Terras: Het zeer ruime terras van ca. 25 m² is direct toegankelijk vanuit beide slaapkamers. Het is de perfecte plek om te ontspannen.

Voorzieningen:
- Voorzien van een videofoon
- Lift aanwezig in het gebouw
- Aluminium ramen met dubbel glas voor optimale isolatie
- Verwarming via radiatoren (Junkers gasketel)
- Elektrische installatie conform goedgekeurd certificaat
- Gunstige EPC-score van 120 kWh
- Geen asbest aanwezig

Garage: De ruime garage van ca. 21 m² is een waardevolle toevoeging aan het appartement. Voorzien van elektra, biedt deze ruimte niet alleen plaats voor uw voertuig, maar ook voor extra opslag.
De aankoop van de garage is verplicht en bedraagt €15.000.

Dit appartement is een uitstekende kans voor wie op zoek is naar een fijn thuis in het centrum van Weelde.

Tevens vormt het een interessante investeringskans voor investeerders.

Voor meer informatie of het plannen van een bezichtiging kunt u contact met ons opnemen via: +32 (0) 14 65 03 79 of mail naar info@verlouwvastgoed.be.


Uw contact

Frans Verlouw +32 (0) 498 49 03 68
contact

Details van het pand

Financieel

Prijs
€ 215.000,00
Beschikbaarheid
Vanaf akte

Ligging

Buurt
Centraal, stadskern

Gebouw

Bewoonbare oppervlakte
78,00 m²
Aantal gevels
2
Bouwjaar
1998
Verdiep
1
Netto oppervlakte
78,00 m²
Oriëntatie achtergevel
West

Terrein

Oriëntatie terras 1
West

Parkeermogelijkheden

Garage
1
Parkings buiten
1

Indeling

Woonkamer
28,00 m²
Keuken
5,00 m², geïnstalleerd
Slaapkamer 1
17,00 m²
Slaapkamer 2
14,00 m²
Badkamer 1
7,50 m²
Toiletten
2
Terras
25,00 m²
Wasplaats
Ja
Zolder
Nee

Comfort

Videofoon
Ja
Lift
Ja

Energie

EPC
120 kWh/m²/jaar
EPC unieke code
20250723-0003652142-RES-1
Dubbele beglazing
Ja
Ramen
Aluminium
Elektriciteitskeuring
Ja, conform
Datum keuring
03/07/2025
Type verwarming
Gas cv
Verwarming
Individueel

Technieken

Elektriciteit
Ja
Kabeltelevisie
Ja
Riolering
Ja
Gas
Ja
Water
Ja

Stedenbouw

Bestemming
Woongebied
Bouwvergunning
Ja
Verkavelingsvergunning
Nee
Voorkooprecht
Nee
Asbestinventarisattest
Ja
Asbestinventarisattest opmaak datum
23/07/2025
Dagvaarding
Nee
O-peil
Niet gelegen in een overstromingsgevoelig gebied
G-score
B
P-score
C
Vonnissen
Nee
Kadaster sectie
A
Kadaster nummer
13048A0301/00M000
Servitude
Nee

Meer info over deze eigendom

Bedankt voor je bericht, we contacteren je zo spoedig mogelijk.
Er was een probleem bij het versturen van het formulier, gelieve opnieuw te proberen.
U moet de algemene voorwaarden aanvaarden om dit bericht te kunnen verzenden
(*) Gelieve de verplichte velden in te vullen.