Huis
€ 534.000

Steenweg op Ravels 305, 2360 Oud-Turnhout
    • delen

Omschrijving Ref.: 7620457

Charmante woning met ruime tuin en garage


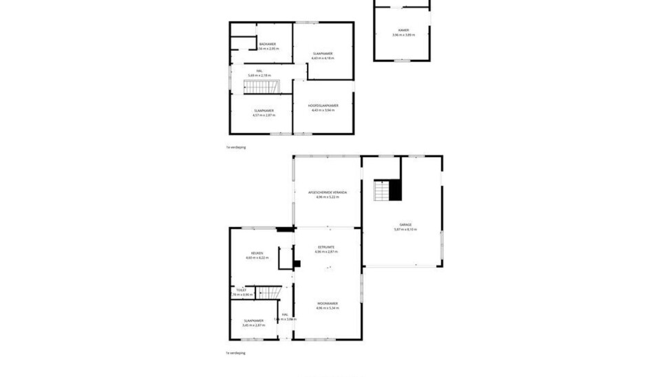
Op de Steenweg op Ravels 305 in Oud-Turnhout bevindt zich deze woning op een ruim perceel van ca. 1.395 m². Dit eigendom biedt niet alleen een comfortabele thuis, maar beschikt ook over een ruime garage met tal van mogelijkheden.

Bij binnenkomst via de voordeur komt u in de inkomhal. Meteen links bevindt zich een aparte kamer, ideaal in te richten als bureau, speelkamer of extra slaapkamer op het gelijkvloers. Vanuit de hal heeft u toegang tot de leefruimtes. De lichtrijke woonkamer is afgewerkt met een parketvloer en voorzien van inbouwkasten. Via de stijlvolle aluminium schuifpui in steellook bereikt u de sfeervolle veranda, een aangename plek om het hele jaar door te genieten.

De keuken is functioneel ingericht en uitgerust met een Miele-inductiekookplaat, een ATAG combi-oven en een vaatwasser. Aansluitend aan de keuken bevindt zich een toilet.

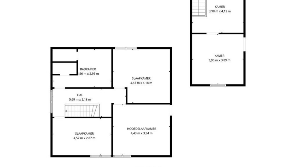
Op de bovenverdieping geeft de overloop toegang tot drie slaapkamers, waarvan één is voorzien van inbouwkasten en alle kamers zijn afgewerkt met laminaat. De badkamer is ingericht met een sauna, dubbele wastafel, een douche in bad en een toilet.

Daarnaast beschikt de woning over een zeer ruime kelder van ca. 51 m².

De woning is gelegen op een ruim perceel met een volledig omheinde tuin, een vijver en een speels hoogteverschil. De tuin biedt veel privacy.

De garage met elektrische poort is een grote troef. Deze biedt plaats aan twee wagens en is voorzien van aansluitingen voor een wasmachine en droogkast. De verdieping boven de garage biedt extra ruimte en leent zich perfect als hobbyruimte, opslagruimte of eventueel als praktijk- of kantoorruimte aan huis.

Tot slot beschikt de woning over een ruime, onderhoudsvriendelijke voortuin met meer dan voldoende parkeergelegenheid.

Troeven:
- Groene stroomcertificaten tot 2031, met een jaarlijkse opbrengst van ca. € 3.000
- Grote garage met elektrische poort en extra verdieping voor diverse doeleinden
- Perceel van ca. 1.395 m² met veel ruimte en privacy, volledig omheinde tuin
- De sauna in de badkamer voor extra ontspanning

Voor meer informatie of het plannen van een bezichtiging kunt u contact met ons opnemen via: +32 (0) 14 65 03 79 of mail naar info@verlouwvastgoed.be.


Uw contact

Frans Verlouw +32 (0) 498 49 03 68
contact

Details van het pand

Financieel

Prijs
€ 534.000,00
Beschikbaarheid
Af te spreken met eigenaar

Ligging

Buurt
Bosrijk, centraal

Gebouw

Structuur
Bakstenen (Caramida)
Bewoonbare oppervlakte
192,00 m²
Aantal gevels
4
Bouwjaar
1956
Renovatiejaar
2020
Staat
Goede staat
Netto oppervlakte
192,05 m²
Oppervlakte hoofdgebouw
175 m²
Type dak detail
Zadeldak, zadeldak
Oriëntatie achtergevel
Oost
Oriëntatie voorgevel
West

Terrein

Grondoppervlakte
1.395,00 m²
Tuin
Ja

Parkeermogelijkheden

Garage
1
Parkings buiten
6
Parkings binnen
2

Indeling

Keuken
Ja, volledig geïnstalleerd
Bureau
Ja
Veranda
Ja
Slaapkamer 1
17,70 m²
Slaapkamer 2
17,10 m²
Slaapkamer 3
12,30 m²
Badkamer type
Alle comfort
Toiletten
2
Wasplaats
Ja
Kelder
Ja
Zolder
Nee

Energie

EPC
324 kWh/m²/jaar
EPC unieke code
20191018-0002208474-RES-2
Elektriciteitskeuring
Ja, conform
Datum keuring
08/06/2011
Type verwarming
Gas cv

Technieken

Elektriciteit
Ja
Kabeltelevisie
Ja
Riolering
Ja
Gas
Ja
Water
Ja

Stedenbouw

Bestemming
Woongebied met landelijk karakter
Bouwvergunning
Ja
Verkavelingsvergunning
Nee
Voorkooprecht
Ja
Dagvaarding
Nee - geen rechterlijke herstelmaatregel of bestuurlijke maatregel opgelegd
O-peil
Niet gelegen in een overstromingsgevoelig gebied
G-score
A
P-score
B
Vonnissen
Nee
Kadaster sectie
D
Kadaster nummer
13031D0060/00H003
Servitude
Nee

Meer info over deze eigendom

Bedankt voor je bericht, we contacteren je zo spoedig mogelijk.
Er was een probleem bij het versturen van het formulier, gelieve opnieuw te proberen.
(*) Gelieve de verplichte velden in te vullen.

Downloads