Villa
€ 689.000

Paardenwiel 6, 2382 Poppel
    • delen

Omschrijving Ref.: 7339918

Ruime woning met gelijkvloerse slaapkamer en prachtige tuin


Deze verzorgde en instapklare woning is rustig gelegen in een aangename woonomgeving, nabij het centrum en een leuk speelpleintje in de buurt voor kinderen. Dankzij de aanwezigheid van een slaapkamer met badkamer op het gelijkvloers is de woning bijzonder geschikt voor levenslang en comfortabel wonen. Tegelijk is dit een ideale gezinswoning, met ruime leefruimtes, meerdere slaapkamers en een veilige, volledig omheinde tuin.

- Rustige en kindvriendelijke ligging
- Nabij centrum, winkels en voorzieningen
- Speelpleintje op wandelafstand
- Ideaal voor gezinnen én levenslang wonen

Video impressie

Op het gelijkvloers komt u binnen via een ruime inkomhal. Hier bevindt zich een volwaardige slaapkamer met airconditioning, die beschikt over een ensuite dressing en badkamer uitgerust met een inloopdouche, toilet en dubbele wastafel. Dit maakt gelijkvloers wonen bijzonder comfortabel en praktisch, zodat u hier altijd kunt blijven wonen, ook als u wat minder goed ter been bent.

- Levensloopbestendig wonen
- Gelijkvloerse slaapkamer met ensuite dressing en badkamer
- Airconditioning

De volledig ingerichte keuken is kwalitatief afgewerkt en beschikt over alle nodige comfort. De keuken is uitgerust met een ATAG microgolf, een Boretti gasfornuis met oven (4 pitten en bakplaat), een heetwaterkraan, vaatwasser, koelkast en veel inbouwkasten.

De gezellige leefruimte is afgewerkt met een warme parketvloer en beschikt over een prachtig hoog puntplafond en zeer grote raampartijen, die zorgen voor een fantastisch licht en ruimtelijk gevoel en een prachtig uitzicht op de ruime tuin. Daarnaast is er zowel een open haard als een houtkachel aanwezig. De grote schuiframen geven rechtstreeks toegang tot het terras en de tuin.

Verder is er een achterinkom met berging, een apart gastentoilet met wastafel en een praktische wasruimte met inbouwkasten en aansluitingen voor was- en droogmachine.

- Parketvloer
- Open haard en houtkachel
- Veel lichtinval
- Rechtstreekse verbinding met buiten

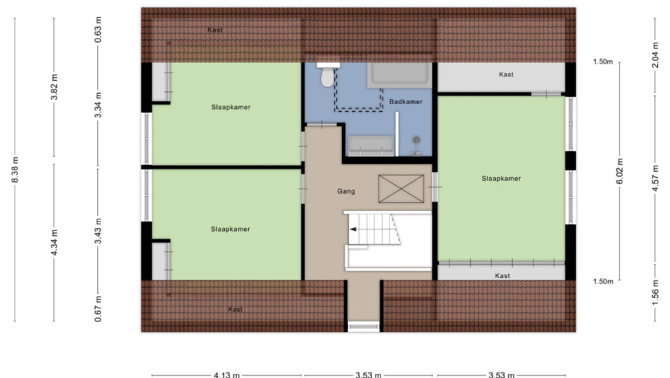
Via de vaste houten trap bereikt u de eerste verdieping, afgewerkt met een mooie houten vloer. Hier bevinden zich drie ruime slaapkamers, allen voorzien van inbouwkasten en rolluiken. De badkamer op deze verdieping is volledig uitgerust met een ligbad, inloopdouche, toilet en dubbele wastafel. Daarnaast is er een bergzolder, bereikbaar via een vlizotrap, die extra opbergruimte biedt.

-3 ruime slaapkamers
- Inbouwkasten in alle kamers
- Rolluiken
- Volwaardige tweede badkamer
- Extra bergzolder

Buiten beschikt de woning over een carport met riante berging, een volledig omheinde en mooi aangelegde tuin met elektrische poort, tuinverlichting en een grondwaterpomp. Het bijgebouw bestaat uit een gezellig overdekt houten terras en een bar met apart toilet, ideaal voor ontspanning, hobby’s en gezellige momenten met familie en vrienden.

- Volledig omheinde tuin
- Elektrische poort
- Carport met ruime berging
- Bijgebouw met overdekt terras en bar

De woning is momenteel verhuurd. De koper dient rekening te houden met de wettelijke opzegtermijn van de huurovereenkomst.

Kortom, een instapklare, ruime gezinswoning die comfort, levensloopbestendigheid en een prachtige buitenruimte combineert. Een ideale plek om rustig en zorgeloos te wonen, dicht bij alle voorzieningen en in een kindvriendelijke omgeving. Voor meer informatie of een bezichtiging kunt u contact opnemen met ons kantoor via: +32 (0) 14 65 03 79 of mail naar info@verlouwvastgoed.be.


Uw contact

Frans Verlouw +32 (0) 498 49 03 68
contact

Details van het pand

Financieel

Prijs
€ 689.000,00
Beschikbaarheid
Mits inachtneming huurders

Ligging

Buurt
Centraal, residentiële wijk

Gebouw

Structuur
Bakstenen (Caramida)
Bewoonbare oppervlakte
238,00 m²
Aantal gevels
4
Bouwjaar
1985
Staat
Goede staat
Netto oppervlakte
306,64 m²
Oppervlakte hoofdgebouw
168 m²
Oriëntatie achtergevel
Noordoosten

Terrein

Grondoppervlakte
1.383,00 m²
Tuin
Ja

Parkeermogelijkheden

Carport
Ja
Parkings buiten
10

Indeling

Keuken
Ja, VS volledig geïnstalleerd
Badkamer type
Alle comfort
Toiletten
4
Wasplaats
Ja
Zolder
50,00 m²

Comfort

Air conditioning
Ja

Energie

EPC
279 kWh/m²/jaar
Elektriciteitskeuring
Ja, niet conform
Type verwarming
Gas cv

Technieken

Elektriciteit
Ja
Telefoonbekabeling
Ja
Kabeltelevisie
Ja
Riolering
Ja
Gas
Ja
Water
Ja

Stedenbouw

Bestemming
Woongebied met landelijk karakter
Bouwvergunning
Ja
Verkavelingsvergunning
Nee
Voorkooprecht
Nee
Dagvaarding
Nee - geen rechterlijke herstelmaatregel of bestuurlijke maatregel opgelegd
O-peil
Niet gelegen in een overstromingsgevoelig gebied
G-score
B
P-score
B
Vonnissen
Nee
Kadaster sectie
D
Kadaster nummer
13033D0052/00E000
Servitude
Nee

Meer info over deze eigendom

Bedankt voor je bericht, we contacteren je zo spoedig mogelijk.
Er was een probleem bij het versturen van het formulier, gelieve opnieuw te proberen.
(*) Gelieve de verplichte velden in te vullen.