Charmant huis
€ 575.000 (In optie)

Schatrijt 26, 2382 Poppel
    • delen

Omschrijving Ref.: 7317543

Instapklare, energiezuinige recreatiewoning in groene, rustige omgeving


Deze instapklare en energiezuinige recreatiewoning, gebouwd in 2015, afgewerkt in 2019, ligt landelijk op een perceel van ca. 912 m². Hier geniet u dagelijks van rust, ruimte en privacy, terwijl comfort en moderne technieken centraal staan. Vanuit de keuken kijkt u uit over het groen. Een uitzicht dat aanvoelt als een levend schilderij. Een unieke plek voor wie houdt van een rustige en groene omgeving.

Video impressie

Buitenruimte
De woning beschikt over een grote geïsoleerde carport (2024) voor twee auto's, met verlichting. Er zijn twee opritten voorzien. De tuin is praktisch aangelegd met een kippenren, recent aangeplante haag en schuur met houtkachel, voor diverse doeleinden. Er is een drainagesysteem en een regenwaterput aanwezig.

Comfort
De woning is uitgerust met moderne en energiezuinige technieken. Er is een warmtepomp met grondboring aanwezig en vloerverwarming in de volledige woning en kelder, die ook kan koelen. Elke kamer heeft een eigen thermostaat. De woning is voorzien van alle luxe: rolluiken, PVC-ramen, dimbare verlichting en voorzieningen voor audio aanwezig. De houtkachel werd twee jaar geleden geplaatst. Daarnaast beschikt de woning over een ventilatiesysteem, krachtstroom, aansluitingen voor een centraal stofzuigsysteem, voorbereidingen voor zonnepanelen en bedrading voor een alarminstallatie.

- Warmtepomp met grondboring
- Individuele Behandelingsinstallatie
- Vloerverwarming + koeling in hele woning
- Individuele thermostaat per kamer
- PVC-ramen, rolluiken en houtkachel
- Ventilatiesysteem en krachtstroom
- Aansluitingen voor centraal stofzuigsysteem en alarmsysteem
- Voorbereiding voor zonnepanelen

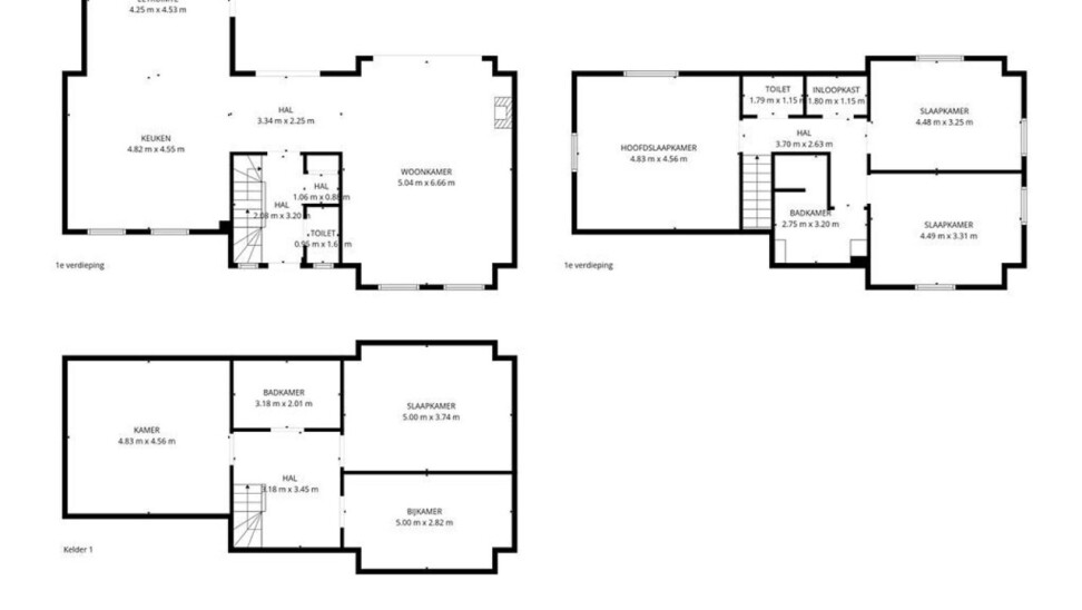
Leefruimte/keuken
De leefruimte geniet van veel licht dankzij de raam partijen en sluit perfect aan op de ruime, moderne keuken. Deze is volledig uitgerust met kwalitatieve Bosch-toestellen (koelkast, vriezer, inductiekookplaat en vaatwasser), een Grohe-kraan en aansluitingen voor een Quooker en tv. Ook is er een mogelijkheid tot een waskoker of liftsysteem naar de kelder.

- Lichtrijke leefruimte met grote schuifpuien
- Moderne keuken met veel werk- en bergruimte
- Bosch-toestellen en voorzieningen voor Quooker en tv
- Mogelijkheid tot waskoker of liftsysteem

Kelder
Op het kelderniveau is een wasplaats, grote polyvalente ruimte, slaapkamer en een badkamer met douche+stoomcabine en toilet. De kelder is volwaardig uitgevoerd en eveneens voorzien van vloerverwarming. In de polyvalente ruimte en de slaapkamer is een tv aansluiting voorzien.

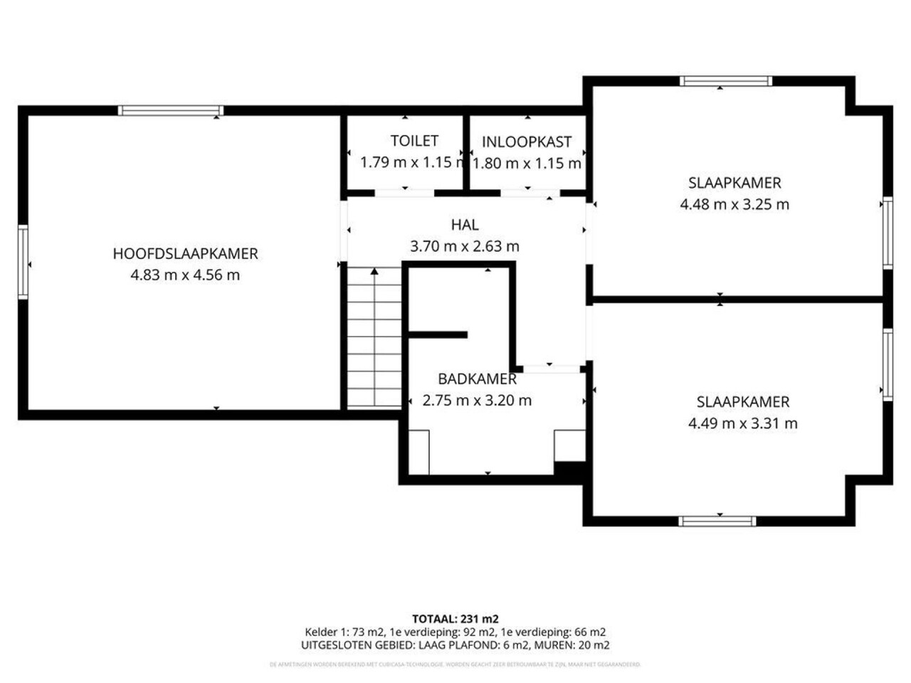
Verdieping
Op de verdieping zijn drie slaapkamers, één met ingebouwde kasten. De tweede badkamer beschikt over een bad, inloopdouche en wastafel. Ook is er een apart toilet. De Velux-dakramen zijn elektrisch bedienbaar en werken op zonne-energie. Op de overloop is nog een aparte dressing die veel opbergruimte biedt. Via een vlizotrap is de zolder bereikbaar, die dienst doet als extra bergruimte.

- 3 slaapkamers (met tv-aansluitingen)
- Badkamer met bad (1,90m) en inloopdouche
- Apart toilet en elektrische Velux-dakramen op zonne-energie
- Zolder bereikbaar via vlizotrap

De woning is een uitzonderlijk complete woning waar landelijk wonen, rust, energiezuinigheid en comfort samenkomen. U kunt hier zorgeloos wonen, genieten van het uitzicht op de natuur en elke dag in alle rust doorbrengen. Dankzij de praktische indeling en de moderne voorzieningen biedt deze woning een aangename leefomgeving voor het hele gezin.

De woning is gelegen in recreatiegebied waar permanent wonen gedoogd wordt.

Voor meer info of het plannen van een bezichtiging: +32(0)14 65 03 79 of info@verlouwvastgoed.be


Uw contact

Frans Verlouw +32 (0) 498 49 03 68
contact

Details van het pand

Financieel

Prijs
€ 575.000,00
Beschikbaarheid
Vanaf akte
Vrij beroep mogelijk
Ja

Ligging

Buurt
Bosrijk, landelijk

Gebouw

Structuur
Bakstenen (Caramida)
Bewoonbare oppervlakte
262,00 m²
Aantal gevels
4
Bouwjaar
2015
Renovatiejaar
2019
Staat
Uitstekend
Netto oppervlakte
262,07 m²
Bruto oppervlakte
245,00 m²
Oppervlakte hoofdgebouw
133 m²
Type dak
Zadeldak
Type dak detail
Zadeldak, plat dak, zadeldak
Oriëntatie achtergevel
Zuidwesten

Terrein

Grondoppervlakte
912,00 m²
Tuin
Ja
Oriëntatie terras 1
Zuidwesten

Parkeermogelijkheden

Garage
Ja
Carport
Ja
Parkings buiten
Ja

Indeling

Keuken
Volledig geïnstalleerd
Bureau
Ja
Slaapkamer 1
22,00 m²
Slaapkamer 2
18,70 m²
Slaapkamer 3
22,00 m²
Slaapkamer 4
14,86 m²
Slaapkamer 5
14,56 m²
Badkamer type
Alle comfort
Toiletten
3
Kelder
Ja
Zolder
50,00 m²

Comfort

Alarm
Ja
Rolluiken
Ja

Energie

EPC
95 kWh/m²/jaar
EPC unieke code
20260120-0003779546-RES-1
Dubbele beglazing
Ja
Ramen
Pvc
Elektriciteitskeuring
Ja, conform
Type verwarming
Warmtepomp
Verwarming
Individueel
Regenwaterput
Ja

Technieken

Elektriciteit
Ja
Telefoonbekabeling
Ja
Kabeltelevisie
Ja
Riolering
Nee
Water
Ja

Stedenbouw

Bestemming
Gebied voor verblijfsrecreatie
Bouwvergunning
Niet meegedeeld
Verkavelingsvergunning
Niet meegedeeld
Voorkooprecht
Niet meegedeeld
Dagvaarding
Niet meegedeeld
O-peil
Niet gelegen in een overstromingsgevoelig gebied
G-score
A
P-score
A
Kadaster sectie
C
Kadaster nummer
13033C0427/00D012

Meer info over deze eigendom

Bedankt voor je bericht, we contacteren je zo spoedig mogelijk.
Er was een probleem bij het versturen van het formulier, gelieve opnieuw te proberen.
(*) Gelieve de verplichte velden in te vullen.